hem

info

projekt

PERMANENT PÅ TJÖRN

    omvandling av sommarstuga till permanentbostad

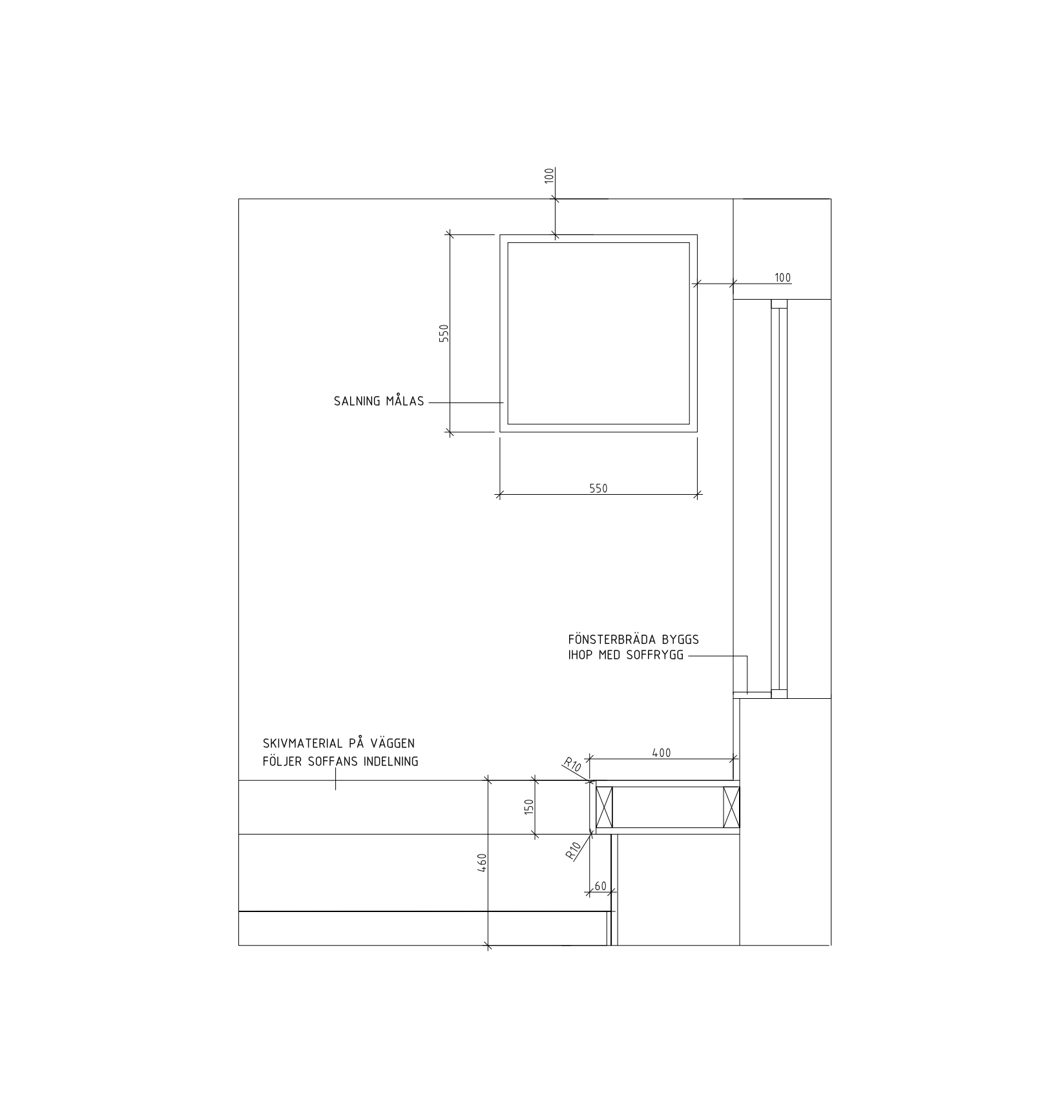
    • Tove, Niklas och Rut lämnade söder i Stockholm för Tjörn på västkusten. Det lilla sommarstugekomplexet med tre byggnder varsamt placerat på en vacker naturtomt, ritades på 1980-talet för ett sommarliv. 2020-talets åretruntliv krävde vissa åtgärder, framförallt utifrån ett energi och uppvärmningsperspektiv. Huset tilläggsisolerades invändigt, takhöjden togs upp till nock och planlösningen gjordes om för att få ökade utblickar och rörelsemönter. Trots tilläggisoleringen som minskade den totala ytan med 2 kvm upplevs huset nu större tack vare de ökade siktlinjerna och ljuset som bjuds in att reflekteras upp på väggytor och takvinklar. Nästa etapp blir ett orangeri för att förbinda huvudhuset med gäststugan och förlänga utomhussäsongen.

    • ÅR: 2024
    • PLATS: Tjörn
    • STLK: 65 + 30 + 15 kvm
85%