hem

info

projekt

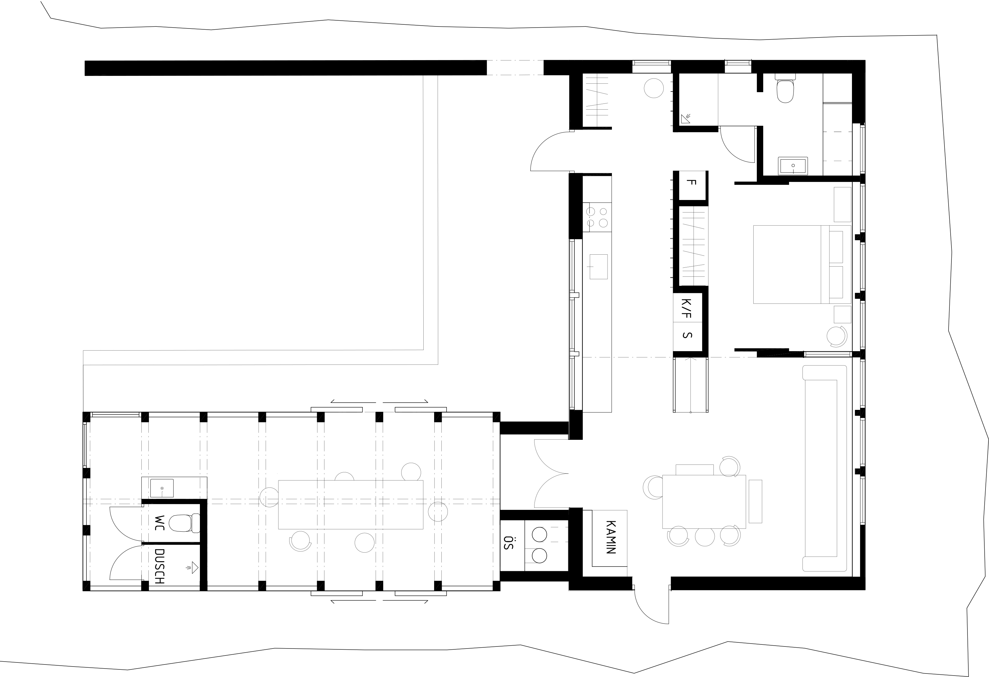
TRÄHUS I STENINGE

    nytt hus på gammal tomt

    • Naturtomten med utsikt över Steninges vidder bär spår av gärdsgårdar och gamla stengrunder. När Sara och Fredrik köpte tomten 2021 stod där en villavagn från England, gården vars stenlämningar syns, brann ner för drygt 20 år sen. De nya husen är placerade i samma läge som den gamla gården och består av ett huvudhus i trä, kopplat i vinkel till ett orangeri av trä och kanalplast. Fönster och öppningar är satta med fokus på utblickar och för att förstärka kontakt och relation mellan natur och människor.

    • ÅR: 2025
    • PLATS: Steninge, Halland