hem

info

projekt

KÖKSROCKAD

    nytt rörelsemönster med köksrockad

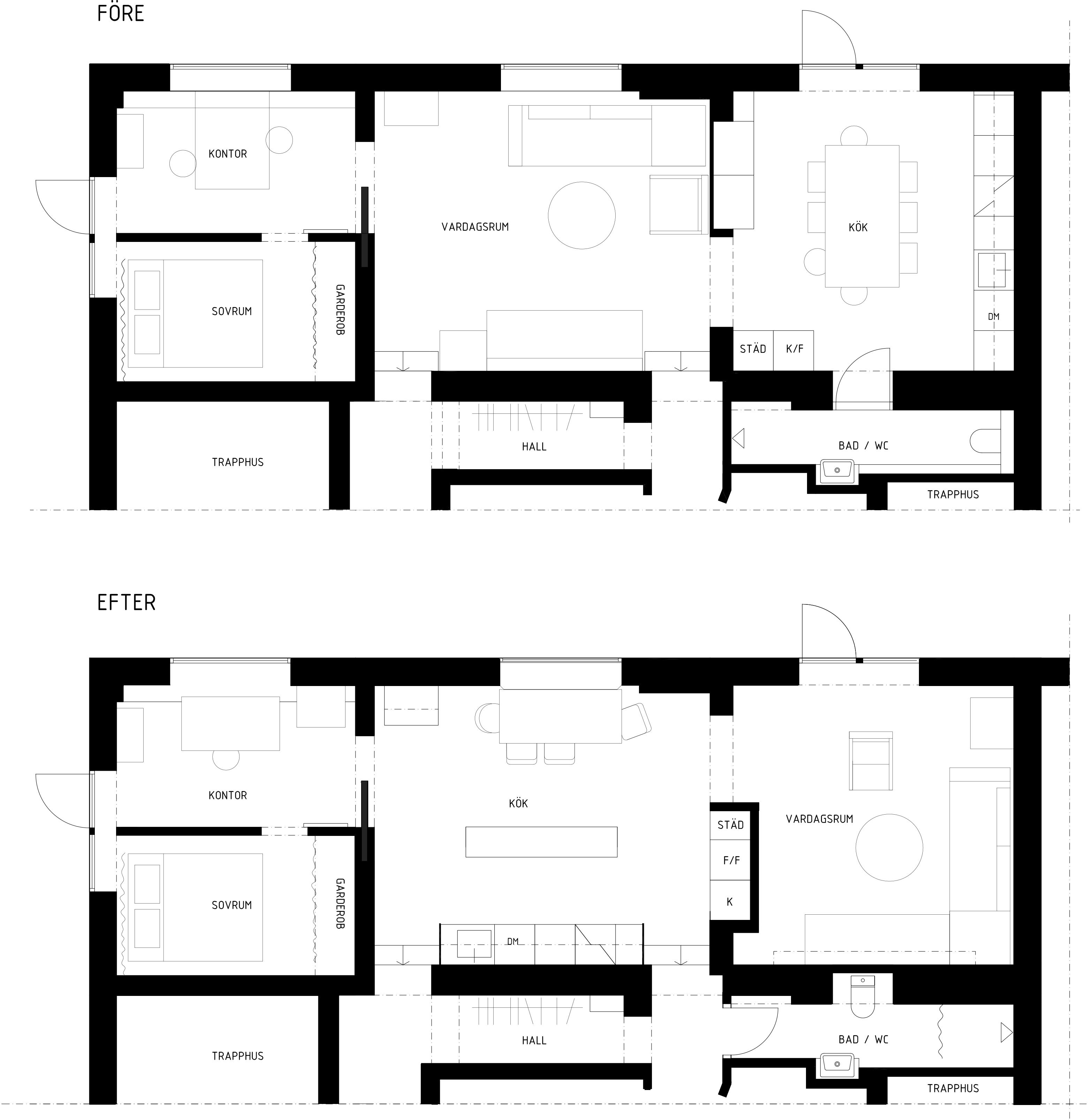
    • Butikslokalen i landshövdingehuset från 1923 har sedan 2003 fungerat som "bokal" och huserat olika formationer av butiker och bostäder. Sedan några år tillbaka används butiken som kontor och lägenhetsytan har vuxit. Med köket längst in i lokalen hackades onödigt stora ytor upp av genomgång och passager. Ombyggnade innebar en flytt av köket till lägenhetens hjärta och rörelsemönstret integrerades i planen och gav rum som krävde lugn trygga hörn.


    • ÅR: 2023
    • PLATS: Majorna, Göteborg