hem

info

projekt

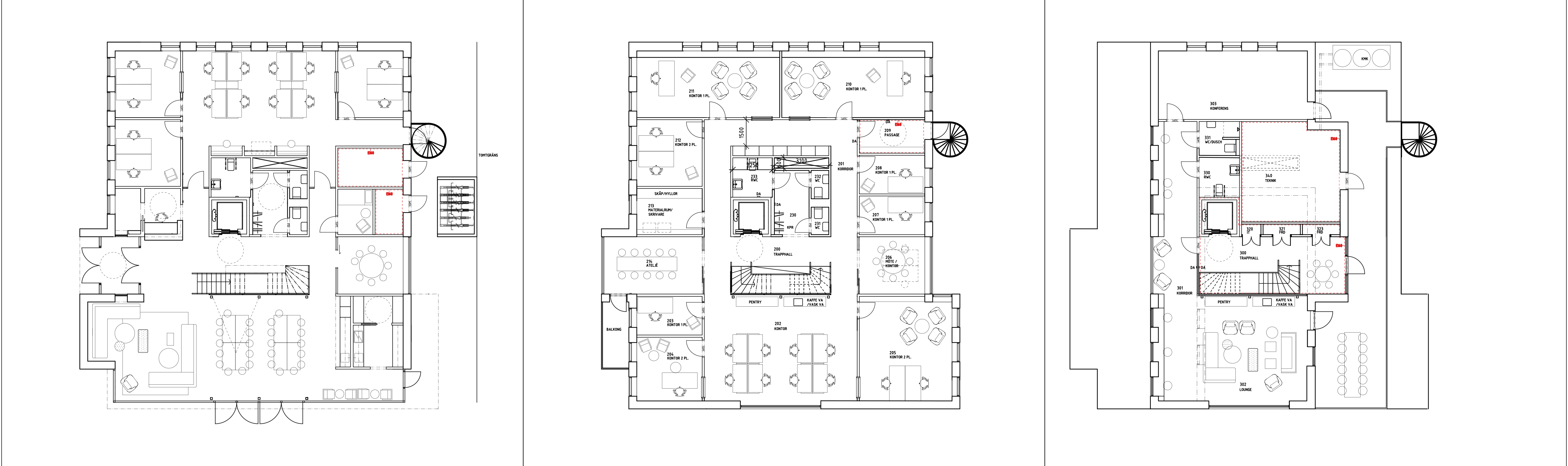
KONTORSHUS VID MÖLNDALDALSÅN

    en arbetsplats med bibliotek och trädgård

    • Mölndals stad växer och de gamla industritomterna längs med Mölndalsån byts successivt ut mot kontor och bostäder. I linje med denna utveckling beviljades 2021 bygglov för ett kontorshus på Lupinen 1. Huset ska samla olika verksamheter inom samma koncern och stor vikt har lagts vid umgängesytor och trivselfaktorer så som trädgård och loungeytor med plats för informella möten. Fasaden av metall i olika transparens och utförande greppar även tag i landskapsplaneringen och bjuder in gårdsytor och grönska till inomhusmiljön.


    • ÅR: Bygglov beviljat 2020
    • BESTÄLLARE: Lixon Fastigheter AB
    • PLATS: Mölndal, Västra Götaland