hem

info

projekt

FRIGGEBOD MYMLAN

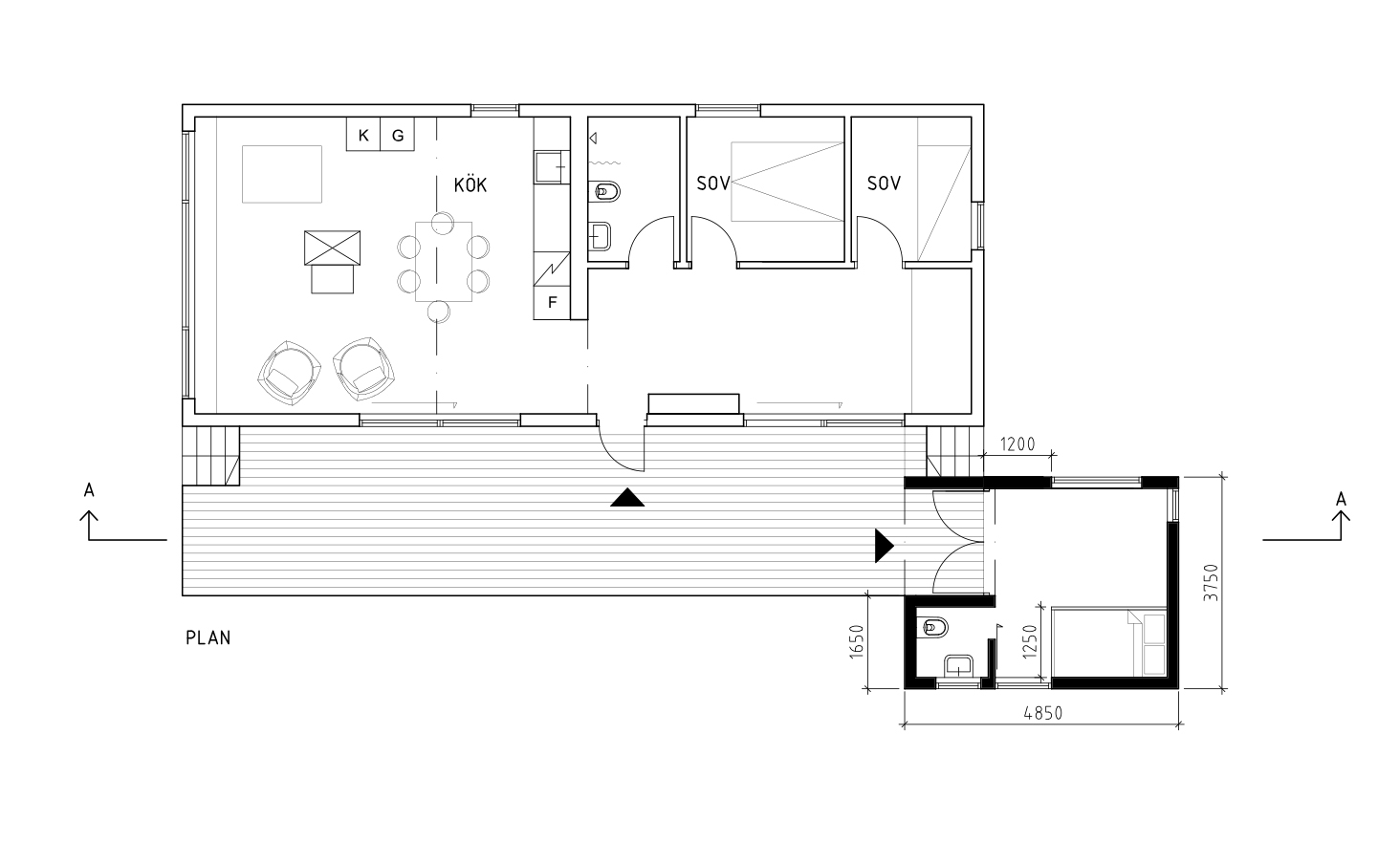
    det lilla huset på altanen

    • Gästhuset är placerat vid kortsidan av altanen och skapar en gårdsformation med huvudhuset. Tillägget på 15 kvm ger två sovkojer, en toalett och en väderskyddad förlängning av altanens rum. Gästhuset kopplas form- och materialmässigt till altanen och låter det svarta huvudhuset råda i siluett och form. Utvändigt är huset klätt med 45x45 furureglar såväl på tak som på väggar. Invändigt kläs ytorna av furuplywood som också utgör den fasta inredningen med sovkojer och vägghyllor.

    • ÅR: 2018
    • PLATS: Brännö, Göteborgs södra skärgård